LA LICORNE, À VITRY-SUR-SEINE
Notre rôle : Fourniture et fabrication de menuiseries exterieures – occultations
102 logements
41 à 55 avenue Rouget de Lisle à Vitry-sur-Seine
Architecte : DARMON
Entreprise : SRB/SYMTRIA
Aménageur : SADEV94
Photos du projet Vitry
ÉTUDES
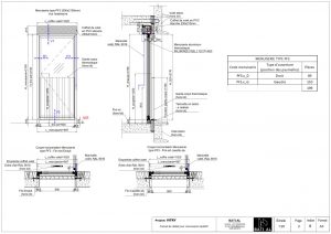
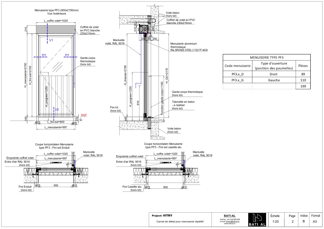
BATI-AL Project: VITRY
Carnet de détail pour menuiserie répétitif
PRODUCTION
BATI-AL
LOGISTIQUE
BATI-AL
Expédition & Emballage
CENTRE LOGISTIQUE FRANCE
BATI-AL
Possibilité de stockage des commandes dans un espace dédié
























